Unity Street, Riddlesden,
£169,950
Asking Price
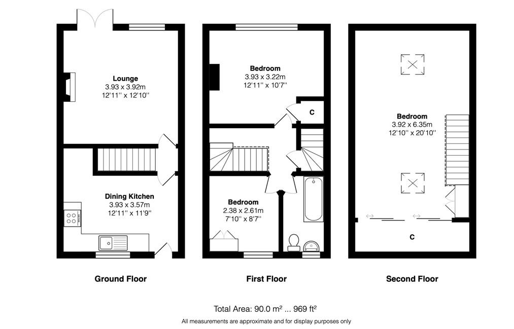
3 Bedroom
1 Bathroom
Interested in this property?
Quick Information
- Ref: 34517407
- Type: Terraced House
- Availability: Sold STC
- Bedrooms: 3
- Bathrooms: 1
- Reception Rooms: 1
- Council Tax Band: A
- Tenure: Freehold

