Shaw Lane, Oxenhope
£190,000
Asking Price
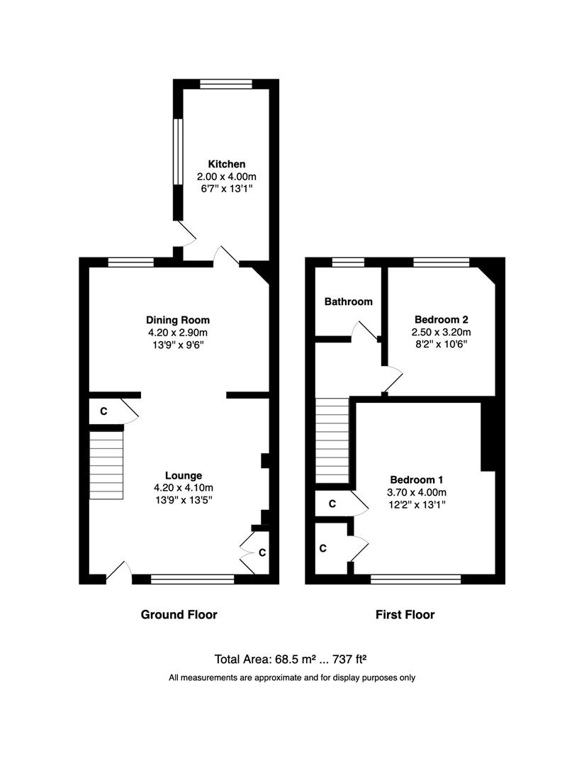
2 Bedroom
1 Bathroom
Interested in this property?
Quick Information
- Ref: 11554
- Type: Cottage
- Availability: For Sale
- Bedrooms: 2
- Bathrooms: 1
- Reception Rooms: 2
- Council Tax Band: B
- Tenure: Freehold


