Meadow Lane, Cononley
£234,950
Asking Price
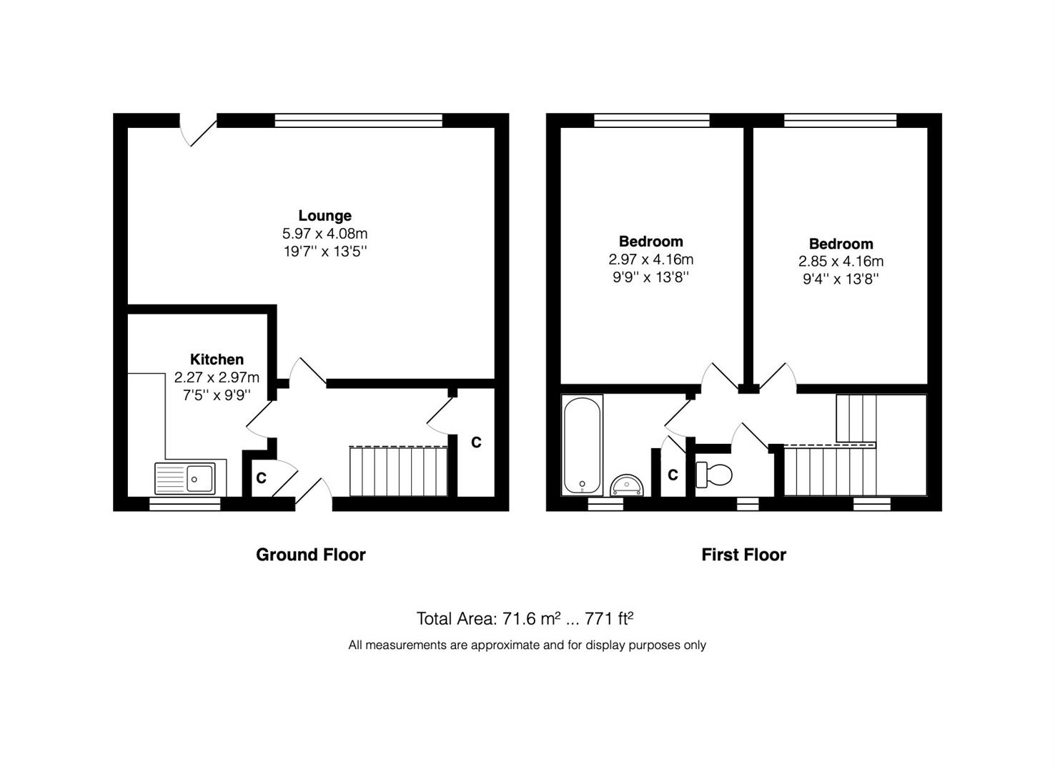
2 Bedroom
1 Bathroom
Interested in this property?
Quick Information
- Ref: 34339888
- Type: Semi-Detached House
- Availability: For Sale
- Bedrooms: 2
- Bathrooms: 1
- Reception Rooms: 1
- Council Tax Band: C
- Tenure: Freehold

