Jessamine Place, Cross Hills

£275,000
3 Bedroom
1 Bathroom

Interested in this property?

Quick Information

  • Ref: 34498627
  • Availability: Sold STC
  • Bedrooms: 3
  • Bathrooms: 1
  • Reception Rooms: 2
  • Council Tax Band: B
  • Tenure: Freehold

Interested?

Property Features

Property Features

  • FULL PLANNING PERMISSION FOR ADJOINING THREE-BED HOUSE
  • OFF-ROAD PARKING
  • GENEROUS GARDENS TO SIDE & REAR
  • CHARMING THREE BEDROOM PROPERTY
  • MODERN, WELL-EQUIPPED DINING KITCHEN
  • GENEROUS SITTING ROOM WITH FEATURE FIREPLACE
  • SOLID ROOF CONSERVATORY
  • ARRANGED OVER THREE FLOORS
  • SPACIOUS DORMER BEDROOM WITH VELUX WINDOW
  • PEACEFUL LOCATION

Property Summary

This charming three-bedroom end-terrace home presents a unique opportunity—not only does it offer spacious, well-planned accommodation over three floors, but it also comes with full planning permission to build an adjoining three-bedroom house to the side (see Craven Planning decision number ZA24/26612/FUL – plans available to view online).

Full Details

PROPERTY DETAILS
This is a rare and exciting opportunity where the approved building plot takes centre stage. With full planning permission already granted (Craven Planning decision number ZA24/26612/FUL – plans available online), the generous side garden offers the chance to construct a brand-new three-bedroom adjoining home. Whether for development, multi-generational living, investment, or future resale, the groundwork has been done — making this an exceptional proposition from day one.

Positioned on a prominent end-terrace plot, the existing three-bedroom home occupies a substantial parcel of land, with the approved development space clearly enhancing both its versatility and long-term value. The breadth of the side and rear garden not only provides immediate outdoor enjoyment but represents tangible, consented potential.

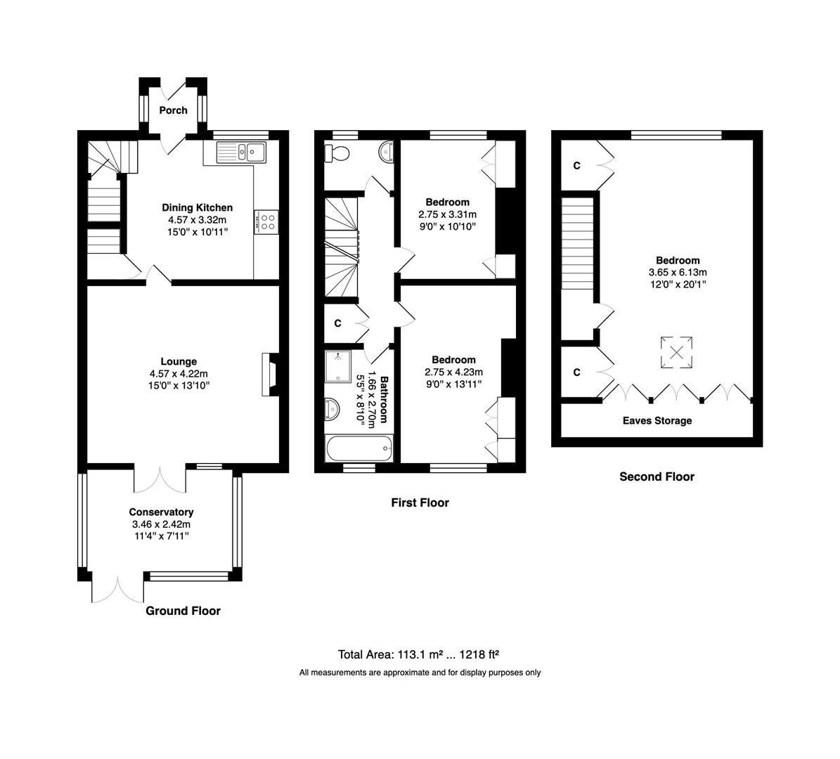
The current property itself offers spacious and well-planned accommodation arranged over three floors. A welcoming front porch with side windows opens into a modern dining kitchen, thoughtfully designed and filled with natural light — ideal for everyday family life. A useful keeping cellar provides practical storage.

The sitting room blends warmth and character, featuring an attractive fire surround with recessed fire, original built-in cabinetry and fitted shelving. French doors open into a solid-roof conservatory, creating a flexible additional living space that connects seamlessly with the garden.

On the first floor, a generous landing with built-in storage leads to a double bedroom and a well-proportioned single bedroom, both with fitted wardrobes. A modern family bathroom includes both bath and separate shower, complemented by a separate cloakroom.

The second floor reveals an impressive dormer bedroom, enhanced by a striking red-brick feature wall, bespoke fitted furniture, a built-in dressing table and a Velux roof window that fills the space with natural light.

Externally, the property benefits from off-road parking and extensive side and rear gardens — the side garden being the key feature, forming the fully approved building plot.

Tucked away on Jessamine Place on the approach to Cross Hills, the property enjoys a peaceful yet highly convenient setting. The village centre is within easy walking distance, offering everyday amenities, well-regarded schools, healthcare facilities, and a variety of pubs, restaurants and cafés. Excellent bus services operate locally, and the nearby train station provides direct links to major commercial centres across North and West Yorkshire.

For buyers seeking not just a home, but a strategic opportunity with planning permission already secured, this is a truly compelling and rare offering.