Harper Grove, Sutton-In-Craven
£299,950
Asking Price
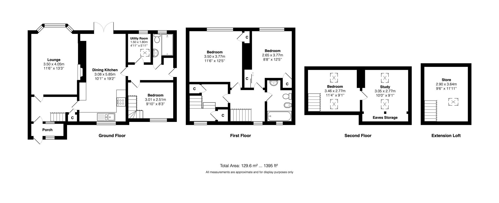
4 Bedroom
2 Bathroom
Interested in this property?
Quick Information
- Ref: 34334905
- Type: Semi-Detached House
- Availability: Sold STC
- Bedrooms: 4
- Bathrooms: 2
- Reception Rooms: 1
- Council Tax Band: B
- Tenure: Freehold

