PROPERTY DETAILS
An outstanding four/five-bedroom detached residence, occupying a slightly elevated position within the highly sought-after Bradley Drive, offering both privacy and far-reaching views. Recently re-roofed in 2025 and beautifully extended and thoughtfully upgraded by the current owners, this impressive home delivers spacious, versatile accommodation perfectly suited to modern family living, including the potential for separate independent living quarter.
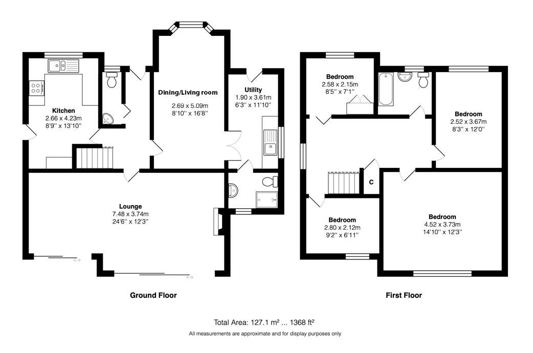
The property immediately impresses with its well-proportioned rooms, tasteful décor and high-quality finishes throughout. Benefiting from gas central heating and sealed unit double glazing, the home opens via a multi-panelled glazed entrance door into a welcoming hallway with an open staircase rising to the first floor and a convenient cloakroom fitted with a stylish two-piece suite.
At the heart of the home lies the principal sitting room which is a bright and inviting space, centred around a modern recessed pebble-effect gas fire with chrome trim. Patio doors open directly onto the rear decking, seamlessly connecting indoor and outdoor living while enjoying pleasant garden views. A stunning contemporary kitchen, features a range of sleek cream high-gloss units complemented by granite worktops and integrated appliances, creating a practical yet elegant space ideal for everyday use whilst the dining/second sitting room provides a further space for entertaining.
The ground floor extension adds exceptional flexibility, complemented by a well-appointed utility room with additional storage and work surfaces and a contemporary shower room featuring a glazed shower cubicle with thermostatic shower, vanity basin and W.C.
To the first floor, the spacious landing leads to four generously sized bedrooms, all enjoying attractive open views. The modern house bathroom is beautifully presented and fitted with an oval bath, pedestal wash basin, low suite W.C., chrome fittings and a heated towel rail, finished with stylish ceramic tiling.
Externally, the property continues to impress. The front offers off-road parking alongside a lawned garden, while the rear reveals a mature, private garden with raised decking, perfect for summer entertaining, well-stocked borders of shrubs and bushes and a garden shed. The elevated position enhances the sense of space and outlook.
Bradley Drive is a particularly desirable residential location, peacefully tucked away from main road traffic yet within easy walking distance of a range of local amenities including shops, schools and recreational facilities. A comprehensive bus service is close at hand and a train link can be found approximately one mile away in the neighbouring village of Steeton, offering excellent commuter connections.
Early viewing is highly recommended to fully appreciate the size, flexibility and enviable position of this superb home.