Thorpe View, Long Ashes Park, Threshfield, Skipton

£374,000 Asking Price
4 Bedroom
3 Bathroom

Interested in this property?

Quick Information

  • Ref: 34249149
  • Type: Other
  • Availability: For Sale
  • Bedrooms: 4
  • Bathrooms: 3
  • Reception Rooms: 1
  • Council Tax Band: Exempt

Interested?

Property Features

Property Features

  • FOUR BEDROOM HOLIDAY LODGE
  • THREE BATHROOMS ALL WITH UNDERFLOOR HEATING
  • OFF ROAD PARKING
  • ELECTRIC CHARGING POINT
  • STORAGE SHED
  • DECKING TO FRONT AND SIDE
  • SPACIOUS OPEN PLAN LIVING
  • SOUGHT AFTER PARK SETTING
  • VIEWING A MUST

Property Summary

Nestled in the tranquil heart of the Yorkshire Dales, this stunning four bedroom, three bathroom holiday home located within Long Ashes Park offers a luxurious haven, with sweeping views over the rolling hills of the Wharfedale Valley. With generous parking and decking to two sides this Lodge must be seen to be truly appreciated.

Full Details

PROPERTY DETAILS
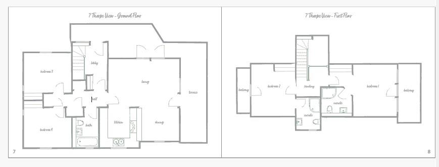
Nestled in the tranquil heart of the Yorkshire Dales, 7 Thorpe View is a stunning holiday home where modern elegance meets beautiful natural scenery. Located within Long Ashes Park, this luxurious haven offers sweeping views over the rolling hills of the Wharfedale Valley, ensuring an unforgettable escape. With four generously sized double bedrooms,
including two with ensuite facilities, this home is ideal for families, friends, or couples looking for a refined countryside experience. From the moment you arrive, the welcoming ambiance of comfort, style, and warmth makes 7 Thorpe View the perfect destination for your next holiday home.
Step into the open-plan living area, where style and space come together seamlessly. Floor-to-ceiling windows bathe the room in natural light, accentuating the warmth of the wood laminate floors in the dining area. A stylish media wall serves as the focal point of the lounge, offering a cosy corner to enjoy a movie or simply admire the stunning views from the plush seating. The open layout creates a smooth transition between the kitchen, dining, and lounge spaces, making it an ideal setting for family gatherings or laid-back evenings with friends. Every aspect of this space is designed to bring the beauty of the outdoors in.
At the heart of 7 Thorpe View lies a modern, spacious kitchen, fully equipped for all your cooking needs. Featuring a state-of-the-art double oven and integrated microwave, it’s ready for everything from a quick breakfast to a gourmet meal. Expansive countertops offer plenty of room for meal preparation, while the thoughtfully designed layout keeps everything within easy reach. Overlooking the dining space, the kitchen keeps you connected with guests, ensuring that cooking and socialising go hand in hand. Whether you’re preparing a family feast or simply brewing your morning coffee, this space is
designed to inspire.
The master bedroom is a serene sanctuary, complete with air conditioning, soft carpet flooring, an underfloor heated ensuite bathroom, and a fitted wardrobe with a vanity mirror, adding a touch of luxury. The second ensuite bedroom, again with air conditioning and ensuite underfloor heating, offers the same elegance and opens onto a private balcony, perfect for enjoying the crisp morning air or a sunset glass of wine. Each bedroom is thoughtfully designed to ensure a restful and rejuvenating stay, allowing every guest to wake up refreshed and ready to explore all that Long Ashes Park has to offer.
The main bathroom features underfloor heating again with a spacious bathtub, inviting you to unwind after a day of exploring the Yorkshire Dales. A sleek basin, toilet, and under-sink storage unit add practicality and style. The ensuite bathrooms are equally luxurious, offering private spaces that elevate the feeling of comfort throughout the home. With attention to every detail, these spaces transform daily routines into moments of indulgence.
Step onto one of the private balconies from the ensuite bedrooms, and you’ll be met with uninterrupted views of the Wharfedale Valley’s lush, rolling hills. These balconies offer a serene space to start your day with a morning coffee or end it with a star-filled sky above. With room for a hot tub, these elevated vantage points provide the perfect setting to relax, unwind, and immerse yourself in the tranquil beauty of your surroundings. The panoramic views, coupled with the gentle breeze and natural sounds of the countryside, create an outdoor experience that’s as calming as it is captivating.
Two private parking spaces are available right outside the property, providing easy access and convenience throughout your stay. The outdoor areas are designed to maximise your enjoyment of the surroundings, with decking that wraps around the front and side of the property—perfect for outdoor dining or simply soaking up the peaceful ambiance. At the rear, a practical shed offers ample storage space, complete with room for washing appliances and a built-in sink, ensuring you have everything you need for an extended stay.
At 7 Thorpe View, every moment is an invitation to relax, reconnect, and rediscover the joys of life’s simple pleasures. From its stylish interiors to its breath-taking outdoor vistas and practical outdoor amenities, this holiday home offers an unparalleled blend of modern comfort and natural beauty. Whether you’re exploring the trails of the Yorkshire Dales or
simply soaking up the stunning views from your private balcony, this is a place where memories are made and cherished.
Come and experience the magic of 7 Thorpe View—your luxurious holiday home in the heart of nature.

ADDITIONAL INFORMATION
The property has a 50 year licence from 25/04/23. The licence agreement is for 50 years from 2021, after which an inspection must be carried out by an Independent Royal Institution of Chartered Surveyors accredited surveyor to ascertain that the Holiday Lodge is fit for occupation. Subject to the report the Holiday Lodge Licence may be extended for a further forty years.
The Thorpe View pitch fees are £6,588 per annum this includes; use of the leisure club and 10% discount on treatments for 2 people, rates, water, sewerage and refuse collection. Electricity is invoiced quarterly, based on your usage, via the park directly. You have a direct gas supply to your lodge which will be invoiced by the third party gas supplier. You are also required to insure your lodge through an insurance provider of your choice.