Main Street, Sutton-In-Craven

£179,950 Asking Price
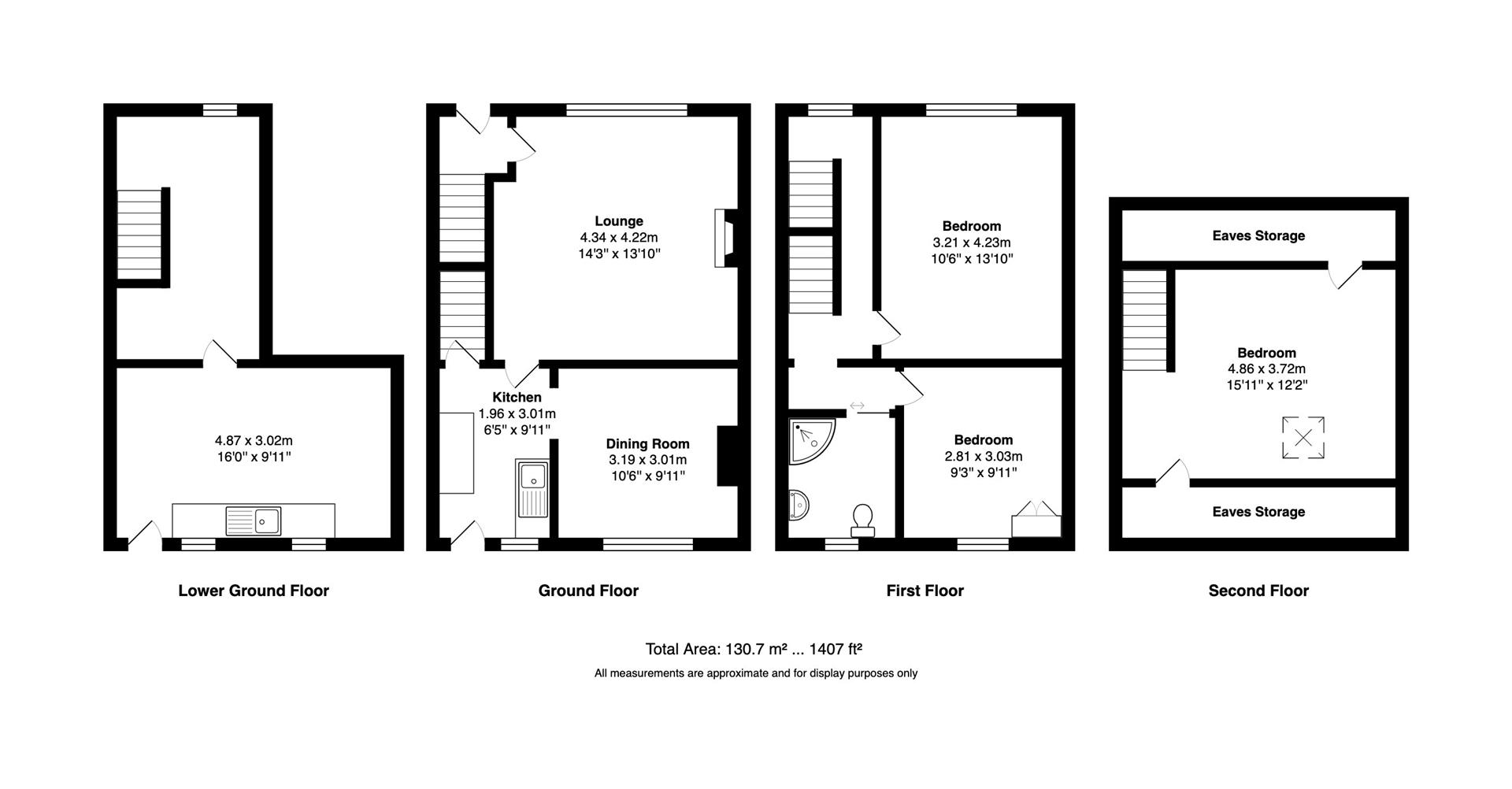
3 Bedroom
1 Bathroom

Interested in this property?

Quick Information

  • Ref: 34201466
  • Type: Terraced House
  • Availability: Sold STC
  • Bedrooms: 3
  • Bathrooms: 1
  • Reception Rooms: 2
  • Council Tax Band: B
  • Tenure: Freehold

Interested?

Property Features

Property Features

  • NO UPPER CHAIN
  • STONE BUILT TERRACE
  • THREE DOUBLE BEDROOMS
  • GENEROUS REAR YARD
  • ARRANGED OVER FOUR FLOORS
  • OFFERS FANTASTIC SCOPE FOR TRANSFORMATION
  • SOUGHT AFTER LOCATION
  • CLOSE TO LOCAL AMENITIES

Property Summary

This three double-bedroom property, arranged over four floors, presents a rare opportunity for buyers eager to create their dream home. Having been cherished by the same owner since 1987, it is now ready for modernisation, offering fantastic scope for transformation.

Full Details

PROPERTY DETAILS
Are you searching for a spacious stone-built terraced home, full of character and potential? This three double-bedroom property, arranged over four floors, presents a rare opportunity for buyers eager to create their dream home. Having been cherished by the same owner since 1987, it is now ready for modernisation, offering fantastic scope for transformation.

Step through the front door into the entrance hall, where an enclosed staircase leads to the upper floors. The sitting room is warm and inviting, featuring a traditional stone fireplace framed by elegant arched alcoves. The kitchen is fitted with a range of units and provides direct access to the rear yard and basement. From here, the dining room enjoys delightful views across the garden.

On the lower ground floor, a superb room awaits – boasting an impressive original inglenook-style fireplace, good ceiling height and a rear window that fills the space with natural light. With direct access to the yard, this area could be transformed into a stunning dining kitchen. A further room on this level is perfectly suited for storage or as a utility space.

The first floor offers a generous landing with stairs leading to the top floor, two spacious double bedrooms, and a shower room. Rising to the second floor, the attic bedroom is expansive, complete with excellent storage tucked beneath the eaves.

Outside, the property benefits from a charming wrought iron frontage and a generous rear yard, providing a private outdoor retreat.

Situated in the heart of a vibrant village, this home enjoys close proximity to local shops, a beautiful park, well-regarded primary schools and welcoming pubs. The neighbouring village of Cross Hills is only a short walk away, offering additional amenities and leisure facilities. With excellent transport links, this location is highly sought after by both young professionals and families.

For those seeking a substantial home with character, space, and endless potential, this unique property is a must-see.