Lyon Road, Eastburn

£399,950 Asking Price
3 Bedroom
2 Bathroom

Interested in this property?

Quick Information

  • Ref: 34116146
  • Type: Cottage
  • Availability: Sold STC
  • Bedrooms: 3
  • Bathrooms: 2
  • Reception Rooms: 1
  • Council Tax Band: D
  • Tenure: Freehold

Interested?

Property Features

Property Features

  • CHARMING COTTAGE
  • THREE DOUBLE BEDROOMS
  • SINGLE GARAGE
  • GATED OFF ROAD PARKING FOR TWO CARS
  • FLAGGED COTTAGE GARDEN
  • FARMHOUSE STYLE KITCHEN
  • MASTER BEDROOM WITH STYLISH EN-SUITE
  • PERIOD CHARM WITH MODERN TOUCHES
  • CLOSE TO LOCAL AMENITIES
  • VIEWING A MUST

Property Summary

Once two charming cottages, now seamlessly combined into one inviting family home. This enchanting three bedroom period property - featuring a single garage, on site parking and generous cottage garden - is truly a gem.

Full Details

PROPERTY DETAILS
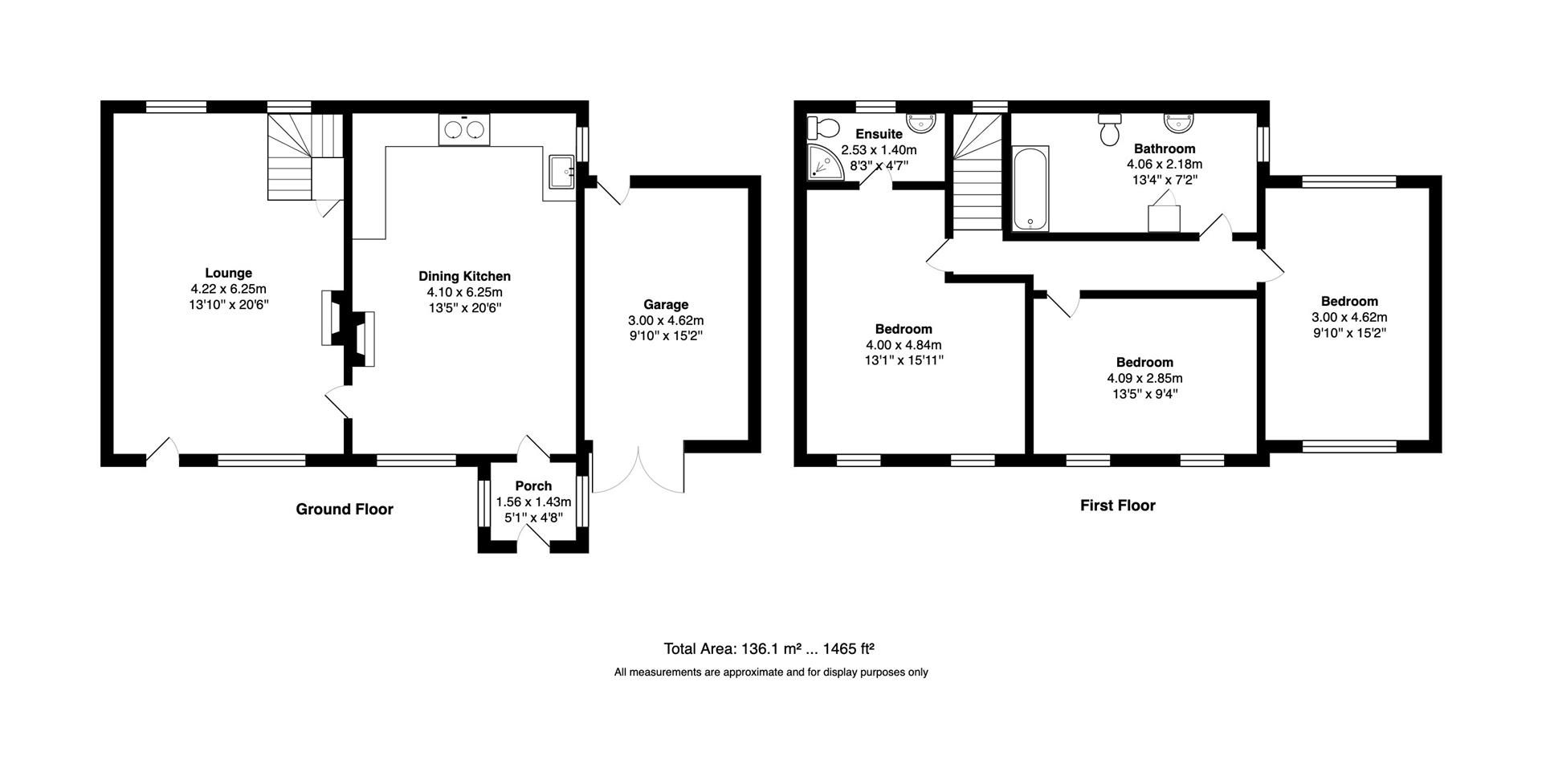
Once two charming cottages, now seamlessly combined into one inviting family home, this characterful property offers an impressive 1,400 square feet of living space. Lovingly presented, it balances period charm with thoughtful modern touches, retaining its original features while enjoying the addition of a farmhouse-style kitchen complete with a gas-fired Aga, as well as a large reception room where Inglenook fireplaces house solid-fuel stoves, creating a warm and timeless heart to the home.

Stepping inside, you are welcomed through a porch into the dining kitchen—a delightful space with bespoke oak cabinetry, Belfast sink, and oak flooring under exposed beams, with a cosy window seat that makes the perfect spot to enjoy a quiet morning. From here, the living room continues the theme of rustic charm with its exposed stone wall, beams, oak flooring and a handsome Inglenook fireplace. Flooded with natural light from windows front and back, it also features an open stone staircase and direct access to the garden, making it both practical and atmospheric.

Upstairs, the landing is graced with a feature arched window, leading to three well-proportioned double bedrooms. The master bedroom is a beautiful retreat, with oak flooring, exposed beams, and twin windows framing far-reaching views over the farm to Farnhill Moor. It also enjoys a stylish en-suite shower room with thoughtful touches such as built-in shelving and a window seat. The second bedroom, also with beams and views from deep windowsills, has easy access to the smartly finished house bathroom, while the third double room—with dual-aspect windows, exposed stone and a beamed ceiling—is currently enjoyed as an office or hobby space. A spacious family bathroom completes the first floor, offering a bright and practical space with ample storage.

Outside, the house is equally appealing. A generous flagged cottage garden, with sleeper bed planters and enclosed by high walls and timber gates, enjoys a sheltered sunny aspect and includes a summer house, perfect for long summer evenings. To the side, there is an excellent single garage with power, lighting and access to a further rear garden area. Secure gated off-road parking is provided for two vehicles, with scope to create additional space if required.

Lyon Road occupies a lovely position on the edge of this popular village, benefitting from peaceful rural views yet remaining close to everyday amenities. Eastburn Primary School, Airedale General Hospital and Steeton Railway Station—offering direct links to Skipton, Keighley, Leeds and Bradford—are all within easy reach.

This enchanting period home, combining semi-rural seclusion with convenience, is truly a gem and is recommended for close inspection to appreciate all it has to offer.