Low Woodhead, Riddlesden,

£345,000 Offers Over
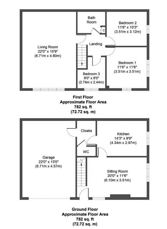
3 Bedroom
1 Bathroom

Interested in this property?

Quick Information

  • Ref: 34249110
  • Type: Other
  • Availability: For Sale
  • Bedrooms: 3
  • Bathrooms: 1
  • Reception Rooms: 2
  • Council Tax Band: E
  • Tenure: Freehold

Interested?

Property Features

Property Features

  • SEMI - DETACHED BARN CONVERSION
  • THREE BEDROOMS
  • PRIVATE DRIVEWAY
  • INTEGRAL GARAGE
  • PAVED FRONT GARDEN
  • TRANQUIL LOCATION ON PRIVATE LANE
  • SOLAR PANELS
  • ORIGINAL FEATURES THROUGHOUT
  • TRULY EXEPTIONAL HOME
  • SOUGHT AFTER VILLAGE

Property Summary

Tucked away at the end of a private road in the sought-after village of Riddlesden, Barn Cottage is a truly exceptional home which offers three generous bedrooms, off - road parking and an integral garage. This type of property rarely graces the market and one that captures the very best of rural charm and modern convenience.

Full Details

PROPERTY DETAILS
Barn Cottage, Riddlesden — A Rare Gem Blending Character, Comfort and Contemporary Living

Tucked away at the end of a private road in the sought-after village of Riddlesden, Barn Cottage is a truly exceptional home — a property that rarely graces the market and one that captures the very best of rural charm and modern convenience.

From the moment you arrive, this beautiful three-bedroom semi-detached barn conversion impresses with its peaceful setting, generous living spaces and a wealth of original features. Exposed beams, mullion windows and a stunning multi-fuel stove create a sense of warmth and character, while thoughtful modern additions -including gas central heating, UPVC double glazing and solar panels, ensure everyday comfort and efficiency.

Step inside and discover a home designed for both relaxation and entertaining. The spacious lounge with its exposed beams and feature bay window offers a cosy yet elegant retreat, while the first-floor sitting room provides an additional haven of calm — perfect for unwinding by the fire or enjoying family time together. The well-appointed kitchen combines rustic charm with practicality, featuring quality units, ample workspace and modern appliances. A convenient utility/cloakroom and internal access to the large integral garage add to the home’s practicality.

Upstairs, three beautifully proportioned bedrooms offer light-filled and inviting spaces, each with serene views of the surrounding countryside and a four piece bathroom completes this floor.

Outside, a private driveway and paved front garden provide ample parking, while the tranquil location at the head of a private lane ensures a rare sense of privacy and seclusion — all just two miles from Keighley’s excellent shopping facilities and transport links across West Yorkshire.

Barn Cottage is a home that perfectly balances character and comfort — a place to fall in love with, to settle into and to make your own. With its blend of period charm and modern lifestyle features, it’s ideal for families, professionals and anyone seeking a peaceful retreat within easy reach of town amenities.

Viewings are essential to truly appreciate the charm, warmth and quality of this remarkable property — we’re confident you’ll be captivated the moment you step inside.