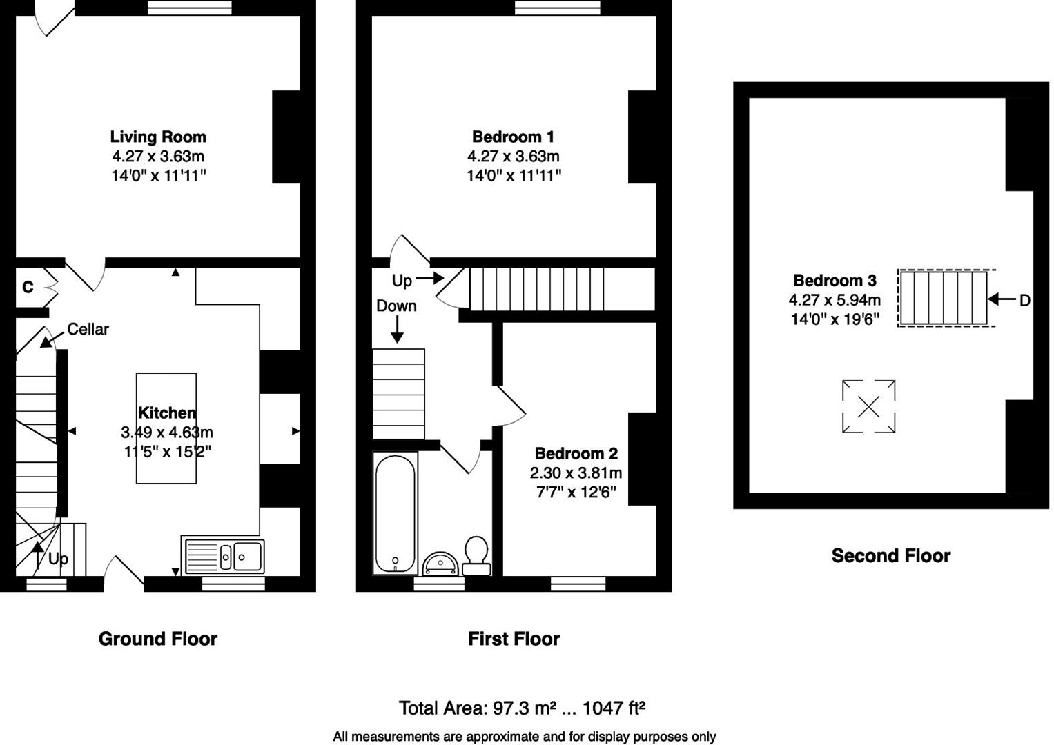
Ash Street, Cross Hills
£199,950
Offers Over
3 Bedroom
1 Bathroom
Interested in this property?
Quick Information
- Ref: 34198076
- Type: Terraced House
- Availability: Sold STC
- Bedrooms: 3
- Bathrooms: 1
- Reception Rooms: 1
- Council Tax Band: B
- Tenure: Freehold

